
CUSTOM DESIGN
Decades of drafting and CAD experience
Let us help you design the home of your dreams and take a virtual walkthrough! See it before you build it!
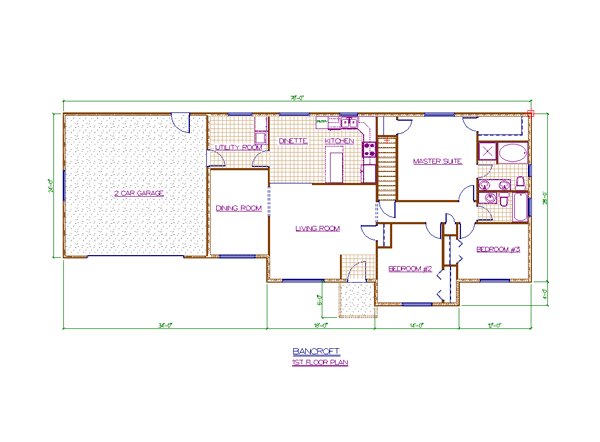
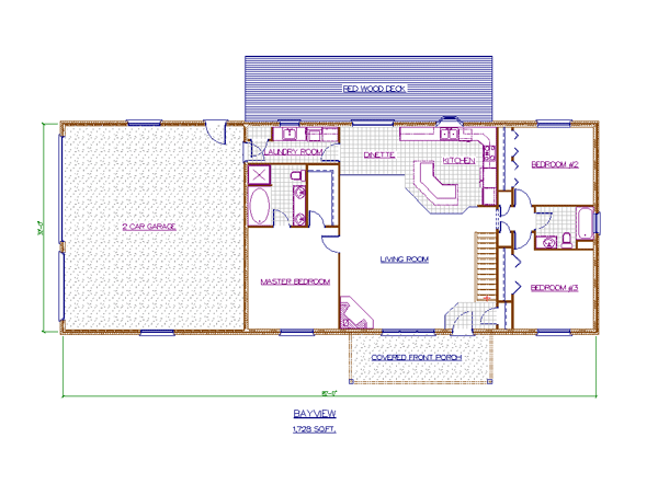
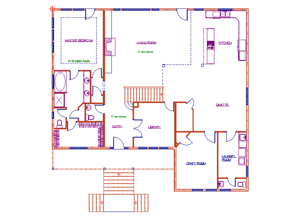
Our Design and Floor Plan Gallery
These are just a few of the computer-aided designs we've created for our clients. Berkeley Construction Inc. will work with you to design the house you've always wanted. Modify something you see here or bring us your sketches and ideas.








